Простір із характером: інтер’єр, що переосмислює орендне житло
У контексті ринку орендного житла, де домінують універсальні та нейтральні рішення, цей інтер’єр у Києві пропонує альтернативу — простір, що не боїться мати характер. Успадкована замовницею квартира у будинку початку ХХ століття стала полем для переосмислення самого підходу до оренди: від функціонального мінімуму — до емоційної присутності. Замість безпечної естетики дизайнерка Євгенія Кузнєцова обирає виразність. Це вже четвертий спільний проєкт із цією клієнткою, і довіра дозволяє працювати з інтер’єром як із цілісною композицією — не лише вирішуючи задачі, а формуючи настрій і сенс.
Анастасiя Белогривцева
18-03-2026 02:21
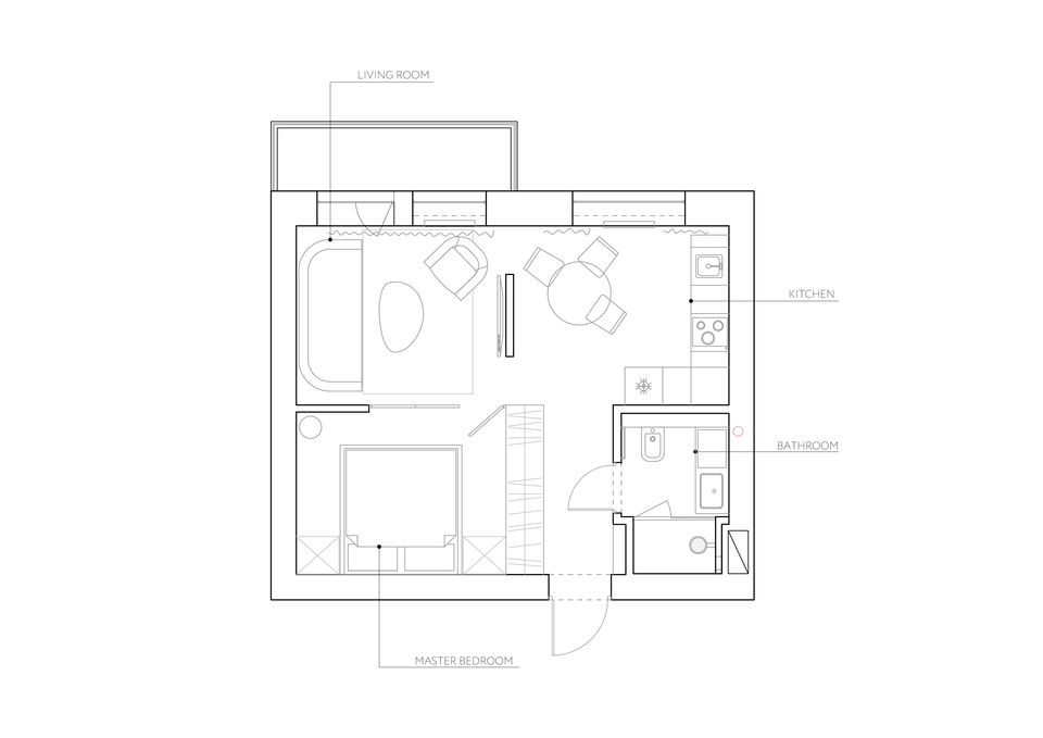
Ключовим викликом стала організація 37 квадратних метрів таким чином, щоб простір залишався придатним для комфортного життя двох людей. Відповіддю стало рішення, що поєднує функціональність і естетику: скляна перегородка з кольоровим металевим профілем. Вона не просто розділяє — вона структурує простір, зберігаючи його повітряність і світло, одночасно задаючи чітку архітектурну логіку.

У цьому інтер’єрі колір перестає бути декоративним елементом — він стає інструментом мислення. Складні пастельні відтінки взаємодіють із насиченими акцентами, формуючи м’яку, але виразну палітру. Простір не перевантажений, але й не прагне стерильності — він живе у балансі між спокоєм і напругою, між тлом і акцентом.



Фото: Владислав Кузнєцов
Матеріальність відіграє не менш важливу роль. Тепле дерево, текстиль, натуральний камінь і скло вибудовують тактильну архітектуру інтер’єру — багатошарову, чуттєву, уважну до деталей. Тут важливо не лише те, що ми бачимо, але й те, що ми відчуваємо.



Фото: Владислав Кузнєцов
Процес реалізації підкреслює цю увагу до ремесла. Одним із показових моментів став пошук майстра, здатного виготовити круглі дерев’яні опори для кавового столика в межах бюджету. Цей елемент, на перший погляд другорядний, виявився критичним для цілісності композиції. Його створення зайняло більше часу, ніж очікувалося, і він був встановлений майже напередодні зйомки. Більшість меблів, дзеркал і арт-об’єктів виготовлені локально, що додає простору автентичності та відчуття ручної роботи.



Фото: Владислав Кузнєцов
Формоутворення інтер’єру підпорядковане ідеї м’якості. Округлі силуети меблів, плавні лінії столів і світильників, разом із продуманим світловим сценарієм, створюють камерну атмосферу — майже інтимну, але не закриту. Це простір, що не демонструє себе, а розкривається поступово.



Фото: Владислав Кузнєцов
Цей інтер’єр принципово не універсальний. Він не намагається сподобатися всім — і саме тому працює. У ньому є позиція, є смак, є чесність. І, можливо, саме це сьогодні стає новою цінністю у дизайні житла.
Зрештою, це простір не лише для проживання, а для досвіду. Простір, до якого хочеться повертатися — не через зручність, а через відчуття.











Фото: Владислав Кузнєцов
Стул KOLO MAXI
Зеркало MIRROR WITH LIGHT
Кресло с розеткой Plump
Диван с розеткой Plump
Журнальный столик M27_KOLO
Диван Miami 3
Журнальный столик KUM
Кашпо Цилиндр 33
Стул Doppio
Стул Tube
Кресло Corner
Диван Corner
Ковер Kyiv
Кофейный столик Берген
Кофейный столик Хедмарк
Журнальный столик PECHERYTSIA
Диван Miami
Стул Корса Х черного цвета
Стул Корса лапка
Стул Корса Х
Стул Пломбир SE 7509
Кухонный стул 03В
Стул Орто новый
Стол раскладной Бронко HPL top slide
Комод Clars 2DS/104
Кухонный стул 03Б
Стул Корса
Стол раскладной Бронко столешница шпон
Стул Floki new black
Зеркало AGATE
Зеркало BERYL
Кофейный столик OX
Стул Mamont soft natural
Стул Otis натуральный Anthology 7 Mocca
Журнальный стол CANELLI 50
Ковер Пейзажная аллея
Бра Pecherna d25
Стул Motti
Зеркало Hvyli Round 60/90/120
Диван Miami mini
Диван со столиком Soft Comfort 140 см
Стул KOLO MAXI
Зеркало MIRROR WITH LIGHT
Кресло с розеткой Plump
Диван с розеткой Plump
Журнальный столик M27_KOLO
Диван Miami 3
Журнальный столик KUM
Кашпо Цилиндр 33
Стул Doppio
Стул Tube
Кресло Corner
Диван Corner
Ковер Kyiv
Кофейный столик Берген
Кофейный столик Хедмарк
Журнальный столик PECHERYTSIA
Диван Miami
Стул Корса Х черного цвета
Стул Корса лапка
Стул Корса Х
Стул Пломбир SE 7509
Кухонный стул 03В
Стул Орто новый
Стол раскладной Бронко HPL top slide
Комод Clars 2DS/104
Кухонный стул 03Б
Стул Корса
Стол раскладной Бронко столешница шпон
Стул Floki new black
Зеркало AGATE
Зеркало BERYL
Кофейный столик OX
Стул Mamont soft natural
Стул Otis натуральный Anthology 7 Mocca
Журнальный стол CANELLI 50
Ковер Пейзажная аллея
Бра Pecherna d25
Стул Motti
Зеркало Hvyli Round 60/90/120
Диван Miami mini
Диван со столиком Soft Comfort 140 см
25 октября 2017, 19:00,
Киев
04 октября 2017, 19:00,
Киев
31 октября 2017, 19:00,
Киев
27 сентября 2017, 10:00,
Киев
31 августа 2017, 10:00,
Киев
05 августа 2017, 10:00,
Киев
28 июля 2017, 14:00,
Киев
07 июля 2017, 10:00,
Киев
13 июня 2017, 17:30,
Киев
16 июня 2017, 16:00,
Киев

Мягкая мебель
Кресла
Диваны
Пуфы
Раскладные диваны
Модульные диваны
Камни из шерсти
Офисные диваны
Кресла мешки
Угловые диваны
Освещение
Бра
Люстры
Настольные лампы
Торшеры
Встроенные светильники
Потолочные светильники
Магнитные системы
Трековые светильники
Уличные светильники
Светильники для ванной комнаты
Гипсовые светильники
Аккумуляторные лампы
Акустические светильники
Текстильная трековая система
Столы
Журнальные столики
Рабочие столы
Кухонные столы
Столы для переговорных
Раскладные столы
Круглые столы
Барные столы
Кухонные комплекты
Декор
Подушки
Свечи и подсвечники
Зеркала
Панно, Картины
Ковры
Вазоны для цветов
Био камины
Настольный декор
Настенные часы
Вазы
Ароматы для дома
Деревянные карты мира
Стулья
Табуреты
Барные стулья
Лавки
Стулья для дома и офиса
Офисные кресла
Пластиковые стулья
Геймерские кресла
Поворотные стулья
Детская мебель
Детские кровати
Детские стулья и кресла
Детские столы
Детские качалки
Шкафы в детскую комнату
Освещение в детскую
Пеленальные столики
Комоды в детскую комнату
Кровати
Хранение
Тумбы
Консоли
Вешалки
Стеллажи
Комоды
Шкафы
Полки
Тумбы под ТВ
Прикроватные тумбочки
Прихожая
Тумбы в ванную
Крючки
Ванная комната
Полотенцесушители
Раковины из бетона
Аксессуары для ванной
Ванны из литого камня
Обои
Влагостойкие обои
Виниловые обои
Текстильные обои
Обои расписанные вручную
Текстиль
Пледы
Постельное белье
Стеновые панели
Звукопоглощающие панели
Ковры
Матрасы
Мебель для офиса
Компьютерные и офисные столы
Стеллажи для офиса
Офисное освещение
Уличная мебель
Садовые стулья
Садовые кресла
Садовые столы
Садовые барные стулья
Акустические перегородки
Кухни
Кухонные комплекты
Чаши для костра
Интерьеры
HoReCa
Интерьер дома
Интерьер квартиры
Общественный интерьер
Интерьер офиса
Интерьер пентхауса
Интерьер магазина
Смарт квартира
Фотография