PARKLAND: простір, що працює на відчуття
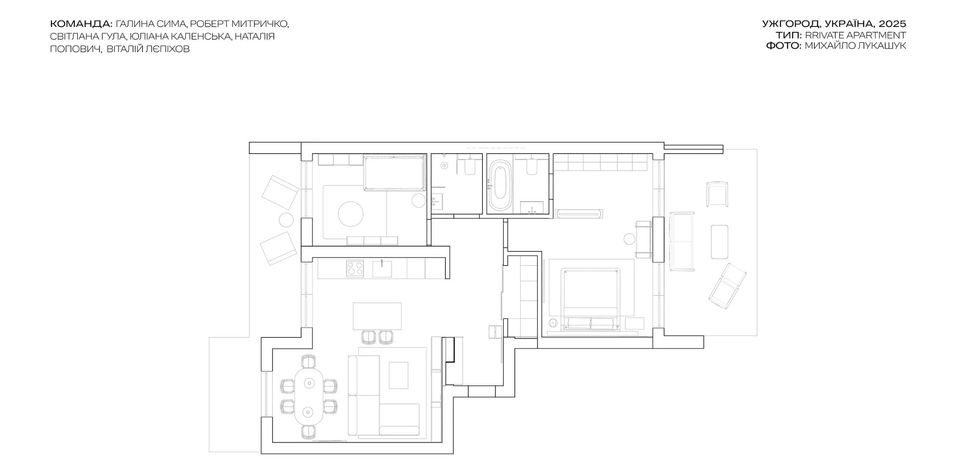
Проєкт PARKLAND — реалізована квартира в Ужгороді, де інтер’єрна архітектура вибудувана не навколо декору, а навколо сценаріїв повсякденного життя. Команда MYTRYCHKOSYMA створила простір як спокійне, тепле середовище, у якому ключову роль відіграють тактильність матеріалів, робота зі світлом та продумана ергономіка — рішення, актуальні поза часовими трендами.
Анастасiя Белогривцева
09-02-2026 05:05
Кухня як м’який центр дому
Огляд квартири площею 107 м² починається з кухні — простору, де світло стає повноцінним елементом інтер’єру. Сонце заходить сюди ближче до вечора й м’яко розтікається по фактурах світлого дерева, мармуру з делікатним малюнком та текстурі букле на стільцях.
Верхню частину кухні свідомо не перевантажували: основні зони зберігання винесені в окремі секції праворуч від робочої лінії та острова. Завдяки цьому простір зберігає легкість, залишається візуально повітряним і не тисне об’ємами.



Фото: Михайло Лукашук
Освітлення побудоване за принципом сценарності — загальне заливаюче світло доповнюється декоративним, що дозволяє змінювати настрій від функціонального ранкового до камерного вечірнього. Кухня не прагне бути домінантою — вона працює на стан спокою.
Спальня: баланс і глибина
Майстер-спальня продовжує загальну логіку інтер’єру: мінімум зайвого, максимум сенсу. Світле дерево в настінних панелях поєднується з дзеркалом, яке візуально поглиблює простір. Тепле світло локальних світильників і камінь в акценті приліжкової тумби формують відчуття зібраності та комфорту.



Фото: Михайло Лукашук
Ліжко з м’яким узголів’ям має інтегровані розетки — непомітне, але щоденно корисне рішення. Велика шафа з підсвічуванням при відкриванні, консоль під ТВ зі зберіганням, що зонує простір, туалетний столик із вбудованим дзеркалом — кожен елемент працює на баланс між естетикою та функцією.
Це інтер’єр, у якому затишок тримається не на декорі, а на відчуттях.
Санвузол як приватний ритуал
Майстер-санвузол задумувався як простір уповільнення — і саме цей сценарій став визначальним. Центральний елемент — ванна, повністю інтегрована в об’єм і облицьована керамогранітом. Такий підхід створює відчуття монолітності й цілісності, а широкі борти додають і естетики, і практичності.


Фото: Михайло Лукашук
Світло знову працює за сценаріями: загальне — для функціональних потреб, і м’яке камерне підсвічування — для вечірнього режиму. Змішувачі, тумби, системи зберігання над інсталяцією організовані так, щоб ніщо не відволікало від головного — стану спокою. Мінімум візуального шуму, максимум турботи.
Деталі, що тримають систему
Проєкт наповнений рішеннями, які залишаються «за кадром», але формують якість життя. Зокрема, кухонна витяжка: стандартну технічну модель інтегрували в спеціально спроєктований короб під фарбування. Це дозволило зберегти функціональність, приховати техніку й підтримати чистоту архітектури.
Світло в інтер’єрі — не декор, а емоційний інструмент. Бра, настільні лампи та світильники підібрані так, щоб працювати не лише на освітлення, а й на атмосферу: підкреслювати фактури, м’яко окреслювати вечірні сценарії та дозволяти простору жити в різних ритмах.







Фото: Михайло Лукашук
Кресло Uni
Садовый мангал Dr.Fire Picnic 80
Садовый мангал Dr.Fire Picnic 100
Садовый мангал Dr.Fire Picnic 100 полубарный
Dr.Fire Super Low 80 см с кольцевым теппаном
Dr.Fire Super Low 80 см с универсальным теппаном
Стул KOLO MAXI
Зеркало MIRROR WITH LIGHT
Кресло с розеткой Plump
Диван с розеткой Plump
Журнальный столик M27_KOLO
Диван Miami 3
Журнальный столик KUM
Кашпо Цилиндр 33
Стул Doppio
Стул Tube
Кресло Corner
Диван Corner
Ковер Kyiv
Кофейный столик Берген
Кофейный столик Хедмарк
Журнальный столик PECHERYTSIA
Диван Miami
Стул Корса Х черного цвета
Стул Корса лапка
Стул Корса Х
Стул Пломбир SE 7509
Кухонный стул 03В
Стул Орто новый
Стол раскладной Бронко HPL top slide
Комод Clars 2DS/104
Кухонный стул 03Б
Стул Корса
Стол раскладной Бронко столешница шпон
Стул Floki new black
Зеркало AGATE
Зеркало BERYL
Кофейный столик OX
Стул Mamont soft natural
Стул Otis натуральный Anthology 7 Mocca
Журнальный стол CANELLI 50
Ковер Пейзажная аллея
Бра Pecherna d25
Стул Motti
Зеркало Hvyli Round 60/90/120
Диван Miami mini
Диван со столиком Soft Comfort 140 см
Стул KOLO MAXI
Зеркало MIRROR WITH LIGHT
Кресло с розеткой Plump
Диван с розеткой Plump
Журнальный столик M27_KOLO
Диван Miami 3
Журнальный столик KUM
Кашпо Цилиндр 33
Стул Doppio
Стул Tube
Кресло Corner
Диван Corner
Ковер Kyiv
Кофейный столик Берген
Кофейный столик Хедмарк
Журнальный столик PECHERYTSIA
Диван Miami
Стул Корса Х черного цвета
Стул Корса лапка
Стул Корса Х
Стул Пломбир SE 7509
Кухонный стул 03В
Стул Орто новый
Стол раскладной Бронко HPL top slide
Комод Clars 2DS/104
Кухонный стул 03Б
Стул Корса
Стол раскладной Бронко столешница шпон
Стул Floki new black
Зеркало AGATE
Зеркало BERYL
Кофейный столик OX
Стул Mamont soft natural
Стул Otis натуральный Anthology 7 Mocca
Журнальный стол CANELLI 50
Ковер Пейзажная аллея
Бра Pecherna d25
Стул Motti
Зеркало Hvyli Round 60/90/120
Диван Miami mini
Диван со столиком Soft Comfort 140 см
25 октября 2017, 19:00,
Киев
04 октября 2017, 19:00,
Киев
31 октября 2017, 19:00,
Киев
27 сентября 2017, 10:00,
Киев
31 августа 2017, 10:00,
Киев
05 августа 2017, 10:00,
Киев
28 июля 2017, 14:00,
Киев
07 июля 2017, 10:00,
Киев
13 июня 2017, 17:30,
Киев
16 июня 2017, 16:00,
Киев

Мягкая мебель
Кресла
Диваны
Пуфы
Раскладные диваны
Модульные диваны
Камни из шерсти
Офисные диваны
Кресла мешки
Угловые диваны
Освещение
Бра
Люстры
Настольные лампы
Торшеры
Встроенные светильники
Потолочные светильники
Магнитные системы
Трековые светильники
Уличные светильники
Светильники для ванной комнаты
Гипсовые светильники
Аккумуляторные лампы
Акустические светильники
Текстильная трековая система
Столы
Журнальные столики
Рабочие столы
Кухонные столы
Столы для переговорных
Раскладные столы
Круглые столы
Барные столы
Кухонные комплекты
Декор
Подушки
Свечи и подсвечники
Зеркала
Панно, Картины
Ковры
Вазоны для цветов
Био камины
Настольный декор
Настенные часы
Вазы
Ароматы для дома
Деревянные карты мира
Стулья
Табуреты
Барные стулья
Лавки
Стулья для дома и офиса
Офисные кресла
Пластиковые стулья
Геймерские кресла
Поворотные стулья
Детская мебель
Детские кровати
Детские стулья и кресла
Детские столы
Детские качалки
Шкафы в детскую комнату
Освещение в детскую
Пеленальные столики
Комоды в детскую комнату
Кровати
Хранение
Тумбы
Консоли
Вешалки
Стеллажи
Комоды
Шкафы
Полки
Тумбы под ТВ
Прикроватные тумбочки
Прихожая
Тумбы в ванную
Крючки
Ванная комната
Полотенцесушители
Раковины из бетона
Аксессуары для ванной
Ванны из литого камня
Обои
Влагостойкие обои
Виниловые обои
Текстильные обои
Обои расписанные вручную
Текстиль
Пледы
Постельное белье
Стеновые панели
Звукопоглощающие панели
Ковры
Матрасы
Мебель для офиса
Компьютерные и офисные столы
Стеллажи для офиса
Офисное освещение
Уличная мебель
Садовые стулья
Садовые кресла
Садовые столы
Садовые барные стулья
Акустические перегородки
Кухни
Кухонные комплекты
Чаши для костра
Интерьеры
HoReCa
Интерьер дома
Интерьер квартиры
Общественный интерьер
Интерьер офиса
Интерьер пентхауса
Интерьер магазина
Смарт квартира
Фотография