HOMIN: як колишній офіс перетворили на дім для великої родини
Проєкт HOMIN — приклад того, як дизайн може працювати з жорсткими архітектурними обмеженнями та адаптуватися до реальних сценаріїв життя. Команда Bezmirno взялася за нетипове завдання: перетворити холодний, технічно перевантажений офісний простір на затишний дім для сім’ї з п’яти осіб і двох домашніх улюбленців.
Анастасiя Белогривцева
16-12-2025 22:59
Початкове приміщення більше нагадувало лабіринт, ніж житло: нарізані кабінети, вузькі коридори, технічні вузли та повна відсутність житлової логіки. Додатковим викликом для авторів проєкту стали критично низькі стелі в частині квартири, розташованій під терасою сусідів.
Назва як ключ до концепції
Назва HOMIN — це гра сенсів. З одного боку, український «гомін» — звук живого дому, наповненого голосами великої родини. З іншого — англійське Home In, повернення туди, де на тебе чекають. Саме ця подвійність і стала основою проєкту.



Фото: Андрій Шурпенков
Адже дім починається не зі стін, а з відчуття. HOMIN — про спокійний ритм життя, чистий простір і архітектурну тишу. Тут немає випадкових ефектів: форма підпорядкована функції та взаємодії з людиною. Це своєрідний маніфест нового мінімалізму, де естетика не суперечить побутовій зручності.
Завдання: переосмислити кожен метр
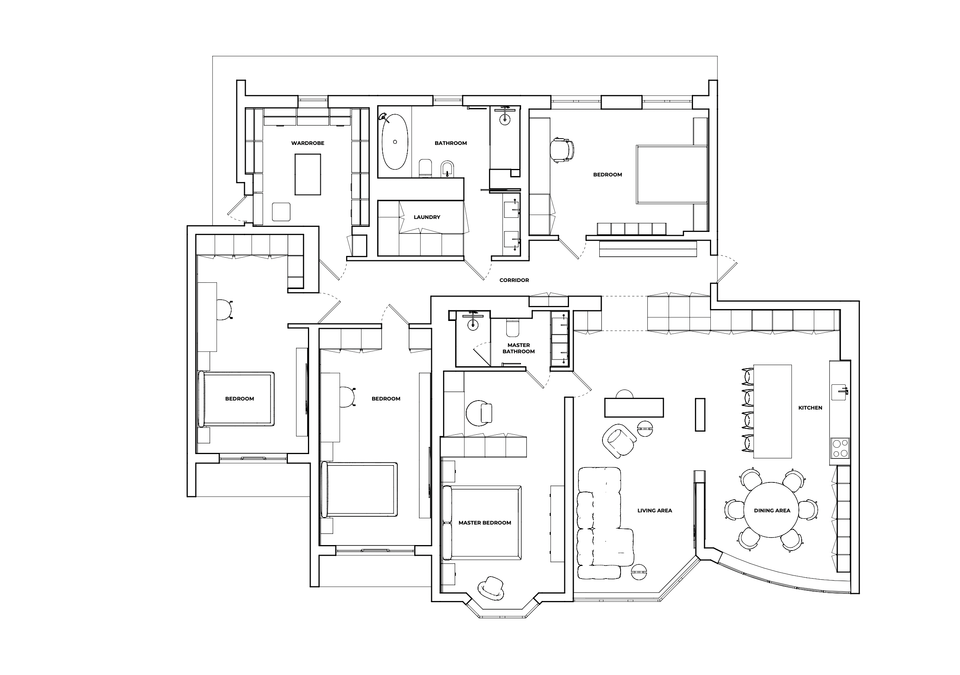
Основним завданням стала повна реконструкція офісу в житловий простір. Вихідні дані були складними: технічні зони, інженерні мережі, хаотичні транзити та геометрія, не пристосована до життя.
Команді потрібно було переосмислити кожен квадратний метр, щоб розмістити велику родину, забезпечивши баланс між спільністю та приватністю.




Фото: Андрій Шурпенков
Виклики: стелі, інженерія і жорсткі рамки
Окрім складного планування, проєкт обмежували технічні умови колишнього офісу. Інженерні вузли диктували свої правила, а занижені стелі вимагали особливо делікатних рішень, аби простір не тиснув візуально та фізично.
Рішення: відкритість і камерність
Відповіддю стало радикальне перепланування та фокус на створенні «візуальної тиші». Команда повністю змінила логіку об’єкта, об’єднавши протилежне: відкриті спільні зони та камерні приватні простори.




Фото: Андрій Шурпенков
Раціональне зонування чітко розділило гостьовий блок і приватну частину дому. Кожен член родини отримав власний простір, а маршрут квартирою став інтуїтивно зрозумілим. Складна офісна геометрія трансформувалася у гармонійне житло, де стіни не тиснуть, а формують комфорт.
Деталі, що працюють на відчуття
Дзеркальні ілюзії ламають жорстку геометрію, розчиняючи реальні межі кімнат у відображеннях. Функція тут прихована максимально делікатно: за шпонованими панелями глибокого коричневого кольору з матовим лаком зникає весь побутовий шум коридору та кухні.




Фото: Андрій Шурпенков
Світло працює не лише як базовий інструмент, а й як засіб зонування. Акцентні та декоративні сценарії візуально «відривають» меблі від стін, додаючи інтер’єру повітря.
У дитячих кімнатах стриманість поступається емоціям: вибуховий жовтий додає динаміки, а світло-сірий пегборд стає простором для творчості, колекцій і самовираження.



Фото: Андрій Шурпенков
Проєкт HOMIN — це приклад того, як технічно складний і «холодний» об’єкт може стати гнучким, теплим домом. Інтер’єр не диктує правил, а підлаштовується під ритм життя родини, залишаючись поза часом.
Команда Bezmirno довела: навіть найжорсткіші архітектурні обмеження можуть стати основою для простору, в якому хочеться жити.




Фото: Андрій Шурпенков
Крісло Uni
Садове вогнище Dr.Fire «Comfort» діаметром 149 см.
Садове вогнище Dr.Fire «Comfort» діаметром 149 см.
Садове вогнище Dr.Fire «Lounge» діаметром 200 см.
Ліжко Nube
Бра MALVA
Стілець KOLO MAXI
Дзеркало MIRROR WITH LIGHT
Крісло з розеткою Plump
Диван з розеткою Plump
Журнальний столик M27_KOLO
Диван Miami 3
Журнальний стіл KUM
Кашпо Циліндр 33
Стілець Doppio
Стілець Tube
Крісло Corner
Диван Corner
Килим Kyiv
Кавовий столик Берген
Кавовий столик Хедмарк
Журнальний столик PECHERYTSIA
Диван Miami
Стілець Корса Х чорного кольору
Стілець Корса лапка
Стілець Корса Х
Стілець Пломбір SE 7509
Кухонний стілець 03В
Стілець Орто новий
Стіл розкладний Бронко HPL top slide
Комод Clars 2DS/104
Кухонний стілець 03Б
Стілець Корса
Стіл розкладний Бронко стільниця шпон
Стілець Floki new black
Дзеркало AGATE
Дзеркало BERYL
Кавовий столик OX
Стілець Mamont soft natural
Стілець Otis натуральний Anthology 7 Mocca
Журнальний стіл CANELLI 50
Килим Пейзажна алея
Бра Pecherna d25
Стілець Motti
Дзеркало Hvyli Round 60/90/120
Диван Miami mini
Диван зі столиком Soft Comfort 140см
Стілець KOLO MAXI
Дзеркало MIRROR WITH LIGHT
Крісло з розеткою Plump
Диван з розеткою Plump
Журнальний столик M27_KOLO
Диван Miami 3
Журнальний стіл KUM
Кашпо Циліндр 33
Стілець Doppio
Стілець Tube
Крісло Corner
Диван Corner
Килим Kyiv
Кавовий столик Берген
Кавовий столик Хедмарк
Журнальний столик PECHERYTSIA
Диван Miami
Стілець Корса Х чорного кольору
Стілець Корса лапка
Стілець Корса Х
Стілець Пломбір SE 7509
Кухонний стілець 03В
Стілець Орто новий
Стіл розкладний Бронко HPL top slide
Комод Clars 2DS/104
Кухонний стілець 03Б
Стілець Корса
Стіл розкладний Бронко стільниця шпон
Стілець Floki new black
Дзеркало AGATE
Дзеркало BERYL
Кавовий столик OX
Стілець Mamont soft natural
Стілець Otis натуральний Anthology 7 Mocca
Журнальний стіл CANELLI 50
Килим Пейзажна алея
Бра Pecherna d25
Стілець Motti
Дзеркало Hvyli Round 60/90/120
Диван Miami mini
Диван зі столиком Soft Comfort 140см
25 October 2017, 19:00,
Київ
04 October 2017, 19:00,
Київ
31 October 2017, 19:00,
Київ
27 September 2017, 10:00,
Київ
31 August 2017, 10:00,
Київ
05 August 2017, 10:00,
Київ
28 July 2017, 14:00,
Київ
07 July 2017, 10:00,
Київ
13 June 2017, 17:30,
Київ
16 June 2017, 16:00,
Київ

М'які меблі
Крісла
Дивани
Пуфи
Розкладні дивани
Модульні дивани
Каміння з вовни
Офісні дивани
Крісла мішки
Кутові дивани
Освітлення
Бра
Люстри
Настільні лампи
Торшери
Вбудовані світильники
Стельові світильники
Магнітні системи
Трекові світильники
Вуличні світильники
Світильники для ванної кімнати
Гіпсові світильники
Акумуляторні лампи
Акустичні світильники
Текстильна трекова система
Столи
Журнальні столи
Офісні столи
Кухонні столи
Столи для нарад
Розкладні столи
Круглі столи
Барні столи
Кухонні комплекти
Декор
Подушки
Свічки та підсвічники
Дзеркала
Пано, Живопис
Килими
Вазони для квітів
Біо каміни
Настільний декор
Настінні годинники
Вази
Аромати для дому
Дерев'яні мапи
Стільці
Табурети
Барні стільці
Лави
Стільці для дому та офісу
Офісні крісла
Пластикові стільці
Геймерські крісла
Поворотні стільці
Дитячі меблі
Дитячі ліжка
Дитячі стільці та крісла
Дитячі столи
Дитячі гойдалки
Шафи в дитячу кімнату
Освітлення в дитячу
Сповивальні столики
Комоди в дитячу кімнату
Ліжка
Зберігання
Тумби
Консолі
Вішаки
Стелажі
Комоди
Шафи
Полиці
Тумби під ТБ
Приліжкові тумби
Передпокій
Тумби для ванної
Гачки
Ванна кімната
Рушникосушки
Раковини з бетону
Аксесуари для ванної
Ванни з литого каменю
Шпалери
Вологтривкі шпалери
Вінілові шпалери
Текстильні шпалери
Шпалери з ручним розписом
Текстиль
Пледи
Постільна білизна
Стінові панелі
Звукопоглинаючі панелі
Килими
Матраси
Меблі для офісу
Комп'ютерні та офісні столи
Стелажі для офісу
Офісне освітлення
Вуличні меблі
Садові стільці
Садові крісла
Садові столи
Садові барні стільці
Акустичні перегородки
Кухні
Кухонні комплекти
Чаши для багаття
Інтер'єри
HoReCa
Інтер'єр будинку
Інтер'єр квартири
Суспільний інтер'єр
Інтер'єр офіса
Інтер'єр пентхаусу
Інтер'єр магазину
Смарт квартира
Фотографія